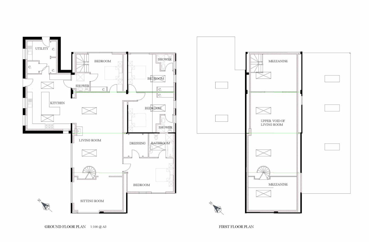
Creation of ‘The Old Dairy’, at Elm Farm, Bristol Road, Iron Acton, is now underway, with completion in the Autumn of 2023!
Conversion of a large agricultural barn to a 4-5 bedroom residential dwelling.
“Thank you so much for Poplars Place you went above and beyond to help us, we really appreciate your time.”
Pam & Colin, Dragon Road



